首页
光伏安装图纸变量表怎么看
返回

光伏安装图纸变量表怎么看

2023-11-27 综合百科 By:佚名
最佳答案1、图纸中会标注出各个部件的尺寸,一般是用毫米或英寸表示。尺寸标注可以帮助制造商确定材料的大小和数量。2、图纸中会标注出产品的结构,包括各个部件之间的连接方式和装配顺序。这些信息可以帮助制造商组装产品并确保其正常运行。3、图纸中会标注出各个部件使用的材料,包括金属、塑料、玻璃等。...

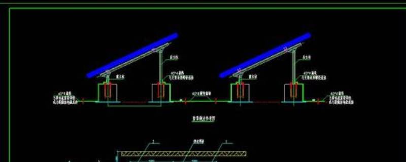
1、图纸中会标注出各个部件的尺寸,一般是用毫米或英寸表示。尺寸标注可以帮助制造商确定材料的大小和数量。

2、图纸中会标注出产品的结构,包括各个部件之间的连接方式和装配顺序。这些信息可以帮助制造商组装产品并确保其正常运行。

3、图纸中会标注出各个部件使用的材料,包括金属、塑料、玻璃等。这些信息可以帮助制造商选择正确的材料并确保产品的质量。

4、图纸中会标注出产品的组件,包括电池板、逆变器、电缆等。这些信息可以帮助制造商选择正确的组件并确保产品的性能。

猜你喜欢
凌驾永恒(关于凌驾永恒的基本详情介绍)

凌驾永恒(关于凌驾永恒的基本详情介绍)

01-02 0 阅读
未来航空有限公司(关于未来航空有限公司的简介)

未来航空有限公司(关于未来航空有限公司的简介)

01-01 0 阅读
有什么办法知道无人按摩椅的外派维修人员设备检修情况如何?

有什么办法知道无人按摩椅的外派维修人员设备检修情况如何?

12-11 0 阅读
请问这个符号咋打

请问这个符号咋打

11-01 0 阅读
蛮神传说(关于蛮神传说的基本详情介绍)

蛮神传说(关于蛮神传说的基本详情介绍)

01-01 0 阅读
vivibear抄袭(vivibear抄袭对比)

vivibear抄袭(vivibear抄袭对比)

01-03 0 阅读
热门推荐
山西化妆学校(关于山西化妆学校的基本详情介绍)

山西化妆学校(关于山西化妆学校的基本详情介绍)

01-01 0 阅读
急性会厌炎(关于急性会厌炎的基本详情介绍)

急性会厌炎(关于急性会厌炎的基本详情介绍)

01-02 0 阅读
凌驾永恒(关于凌驾永恒的基本详情介绍)

凌驾永恒(关于凌驾永恒的基本详情介绍)

01-02 0 阅读
脉压差小是咋回事(脉压差小的原因是什么)

脉压差小是咋回事(脉压差小的原因是什么)

01-03 0 阅读
建柏的寓意

建柏的寓意

09-06 0 阅读
吴用有什么性格特点?(吴用的性格有什么特点)

吴用有什么性格特点?(吴用的性格有什么特点)

12-31 0 阅读
济南地铁(关于济南地铁的基本详情介绍)

济南地铁(关于济南地铁的基本详情介绍)

01-01 0 阅读
新编基础日语 第二册 修订版(关于新编基础日语 第二册 修订版的简介)

新编基础日语 第二册 修订版(关于新编基础日语 第二册 修订版的简介)

12-31 0 阅读
未来航空有限公司(关于未来航空有限公司的简介)

未来航空有限公司(关于未来航空有限公司的简介)

01-01 0 阅读
校园男孩动漫(校园男孩)

校园男孩动漫(校园男孩)

01-02 0 阅读